
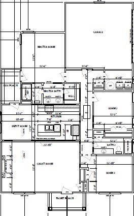
Under Construction Homes in Abbeville SC. Lifestyle Home Construction has only a few lots in Abbeville that we will be building all new maintenance free homes with 2 car garages and patios. Plan is 3 bedrooms and 3full bathrooms. USDA for special financing with approved lenders. Homes are all vinyl siding with stone water tables, Radiant Barrier roof sheating, maintenance free soffit/fascia/windows and siding. 2 car garage with openers. Inside all plans have white shaker cabinets, granite in kitchen and LVP flooring in kitchen/breakfast and foyers. Buy now and make your own selections, but don’t take too long, they will be finished by the end of Marc 2025, but we have more lots to choose from. All lots are landscaped, have underground electric, city sewer and water. *****all information deeded accurate but subject to change without notice.
© 2025 Greenwood MLS. All rights reserved. The data relating to real estate for sale on this web site comes in part from the Internet Data Exchange Program of GWSCMLS. Real estate listings held by IDX Brokerage firms other than Better Homes and Gardens Real Estate Executive Partners are marked with the Internet Data Exchange logo or the Internet Data Exchange thumbnail logo and detailed information about them includes the name of the listing Brokers. Information provided is deemed reliable but not guaranteed. Data last updated: Friday, April 4th, 2025 01:51:52 AM. Listing courtesy of Better Homes & Gardens Real Estate.
Data services provided by IDX Broker
| Price: | $249900 |
| Address: | 1005 Greenville |
| City: | Abbeville |
| County: | Abbeville |
| State: | South Carolina |
| Subdivision: | Camelot |
| MLS: | 131788 |
| Acres: | 0.31 |
| Lot Square Feet: | 0.31 acres |
| Bedrooms: | 3 |
| Bathrooms: | 2 |