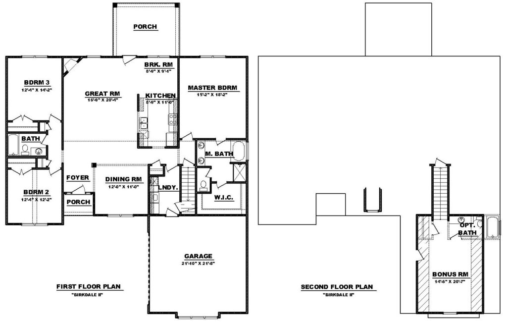
Birkdale II

Birkdale II

Bedrooms

Bathrooms

Square Feet

Foot Print

Garage

We Are Here To Help

Every Step Of The Way

Get More Information

Have questions? Let us know what you are looking for and we will get back to you to discuss your needs.

Our Building Process

We are here to help you every step of the way. Learn about our building process and building your custom home. 

Contact Us Today

Experience superior craftsmanship, a seamless home-building process, and a best-in-class warranty—backed by our professional, experienced team. Get in touch today to start building your dream home with Lifestyle Homes!

Lifestyle Homes LLC

2585 Trade Center Drive
Evans, GA 30809

706-210-5488
Email Us

© Lifestyle Homes LLC. All Rights Reserved

Real Estate IDX Website Design
Motive Media & Marketing